跳到主要內容
:::
Facebook Line Twitter

財政部國有財產署中區分署彰化辦事處111年度招標第1批 國有非公用不動產暨國防部委託標售國軍老舊眷村改建國有不動產

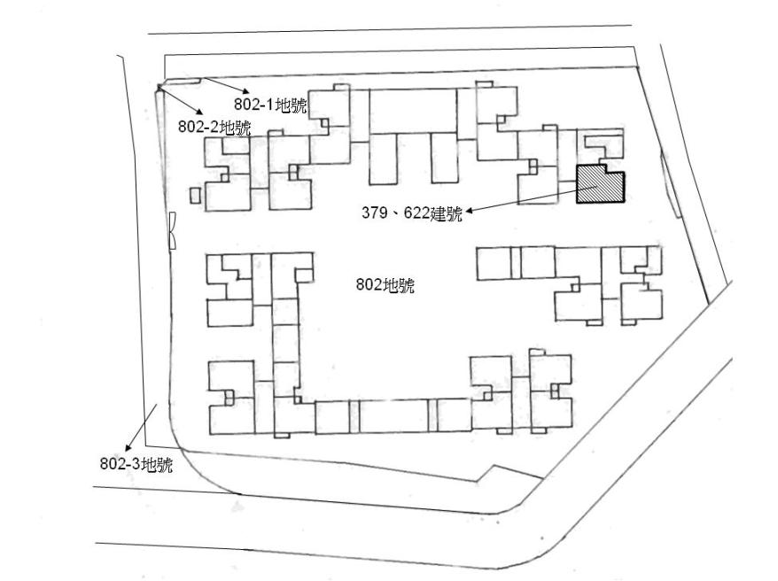
◎非屬標售公告內容,僅供參考使用,投標人應依地政機關核發資料自行查看相關位置,不得以本位置圖記載有誤而要求損害賠償或解除買賣契約退還保證金。

土地標示:彰化縣彰化巿桃源段0802-0000地號

位置圖

照片一

照片二

照片三