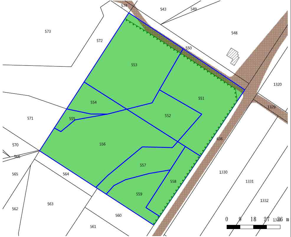
財政部國有財產署北區分署花蓮辦事處115年度招標第3批第9標 標租不動產資訊
◎非屬標租公告內容,僅供參考使用,投標人應依地政機關核發資料自行查看相關位置,不得以本位置圖記載有誤而要求損害賠償或解除契約退還保證金。
土地標示:花蓮縣壽豐鄉精鐘段0554-0000地號
花蓮縣壽豐鄉精鐘段0555-0000地號
花蓮縣壽豐鄉精鐘段0556-0000地號
花蓮縣壽豐鄉精鐘段0557-0000地號
花蓮縣壽豐鄉精鐘段0558-0000地號
花蓮縣壽豐鄉精鐘段0559-0000地號
花蓮縣壽豐鄉精鐘段0555-0000地號
花蓮縣壽豐鄉精鐘段0556-0000地號
花蓮縣壽豐鄉精鐘段0557-0000地號
花蓮縣壽豐鄉精鐘段0558-0000地號
花蓮縣壽豐鄉精鐘段0559-0000地號
位置圖
照片一
照片二
照片三