財政部國有財產署北區分署112年度招標第11批第21標 標租不動產資訊
◎非屬標租公告內容,僅供參考使用,投標人應依地政機關核發資料自行查看相關位置,不得以本位置圖記載有誤而要求損害賠償或解除契約退還保證金。
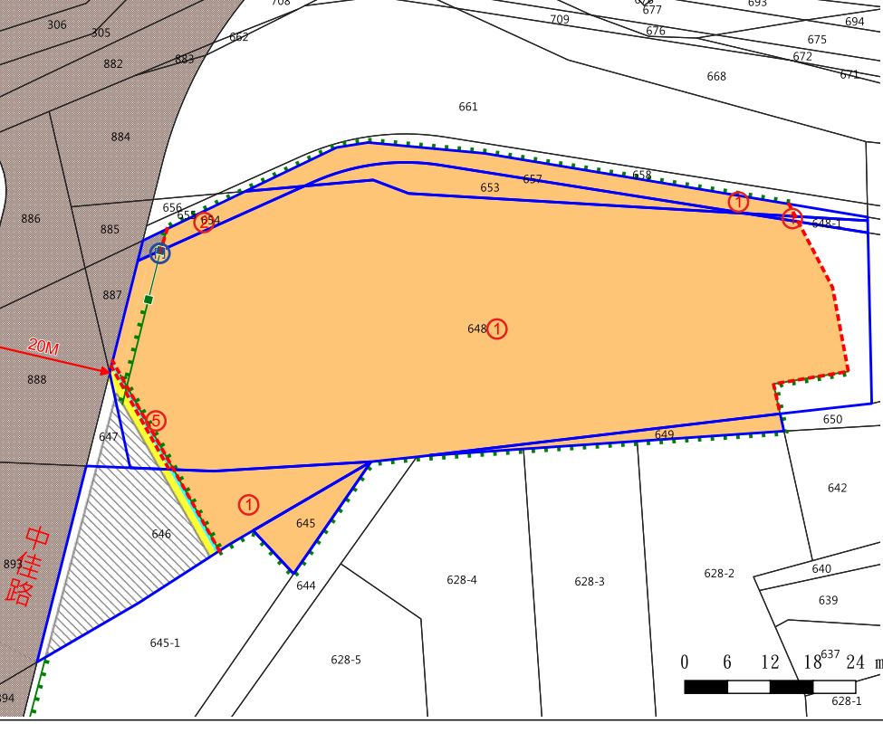
土地標示:新北市樹林區新興段0645-0000地號
新北市樹林區新興段0646-0000地號
新北市樹林區新興段0648-0000地號
新北市樹林區新興段0649-0000地號
新北市樹林區新興段0653-0000地號
新北市樹林區新興段0646-0000地號
新北市樹林區新興段0648-0000地號
新北市樹林區新興段0649-0000地號
新北市樹林區新興段0653-0000地號
位置圖
照片一
照片二
照片三