財政部國有財產署北區分署113年度招標第18批第24標 標租不動產資訊
◎非屬標租公告內容,僅供參考使用,投標人應依地政機關核發資料自行查看相關位置,不得以本位置圖記載有誤而要求損害賠償或解除契約退還保證金。
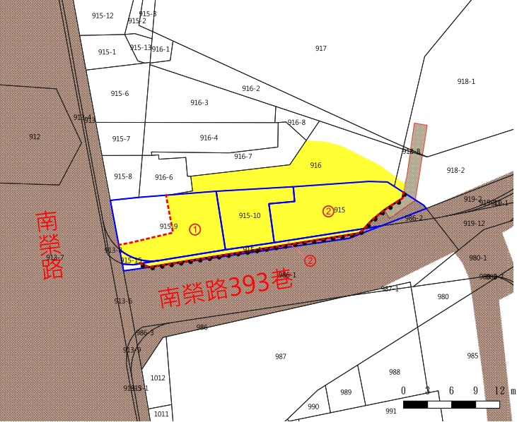
土地標示:基隆市仁愛區南新段0915-0000地號
基隆市仁愛區南新段0915-0004地號
基隆市仁愛區南新段0915-0009地號
基隆市仁愛區南新段0915-0010地號
基隆市仁愛區南新段0915-0015地號
基隆市仁愛區南新段0915-0004地號
基隆市仁愛區南新段0915-0009地號
基隆市仁愛區南新段0915-0010地號
基隆市仁愛區南新段0915-0015地號
位置圖
照片一
照片二
照片三