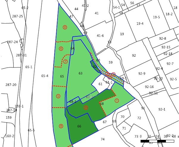
財政部國有財產署中區分署新竹辦事處114年度招標第12批第12標 標租不動產資訊
◎非屬標租公告內容,僅供參考使用,投標人應依地政機關核發資料自行查看相關位置,不得以本位置圖記載有誤而要求損害賠償或解除契約退還保證金。
土地標示:新竹縣竹東鎮中正段0060-0000地號
新竹縣竹東鎮中正段0062-0000地號
新竹縣竹東鎮中正段0063-0000地號
新竹縣竹東鎮中正段0063-0001地號
新竹縣竹東鎮中正段0064-0000地號
新竹縣竹東鎮中正段0065-0000地號
新竹縣竹東鎮中正段0066-0000地號
新竹縣竹東鎮中正段0068-0000地號
新竹縣竹東鎮中正段0068-0001地號
新竹縣竹東鎮中正段0062-0000地號
新竹縣竹東鎮中正段0063-0000地號
新竹縣竹東鎮中正段0063-0001地號
新竹縣竹東鎮中正段0064-0000地號
新竹縣竹東鎮中正段0065-0000地號
新竹縣竹東鎮中正段0066-0000地號
新竹縣竹東鎮中正段0068-0000地號
新竹縣竹東鎮中正段0068-0001地號
位置圖
照片一
照片二
照片三