跳到主要內容
:::
Facebook Line Twitter

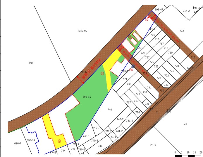
財政部國有財產署北區分署桃園辦事處113年度招標第19批第6標 標租不動產資訊

◎非屬標租公告內容,僅供參考使用,投標人應依地政機關核發資料自行查看相關位置,不得以本位置圖記載有誤而要求損害賠償或解除契約退還保證金。

土地標示:桃園市中壢區振興段0696-0035地號

位置圖

照片一